Á¦Ç°¼Ò°³

âÀÇÀûÀÌ°í °¨°¢ÀûÀÎ µðÀÚÀÎÀ¸·Î º¸´äÇÏ´Â ºñÁö´Ï½º ÆÄÆ®³Ê°¡ µÇ°Ú½À´Ï´Ù.

LED ½Ç³»Á¶¸í


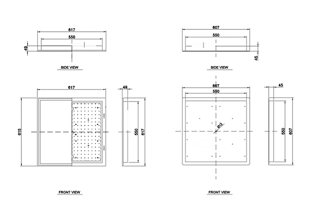
ÆòÆÇ¸ÅÀÔ M-BAR 600*600 (A-TYPE)

Á¦Ç°»ç¾ç

¡Ø Á¦Ç°ÀÇ Å¸°ø»çÀÌÁî´Â ¹Ýµå½Ã ´ã´çÀÚ¿¡°Ô È®ÀÎ ºÎʵ右´Ï´Ù.
Ç¥¸¦ ÁÂ,¿ì·Î µå·¡±× ÇØÁÖ¼¼¿ä.
¸ðµ¨¸í ¼ÒºñÀü·Â(W) Á¦Ç°ÀÎÁõ Àü±âÀüÀÚÆÄ
ÀûÇÕµî·Ï¹øÈ£
Á¶´Þû
¹°Ç°½Äº°¹øÈ£
ÃʱⱤ¼Ó(lm) ±¤È¿À²(lm/W) »ö¿Âµµ(K) ¿¬»ö¼º(Ra) Ãâ·ÂÀü¾Ð(V) ºñ°í
ESL-50ML6060K57S 50 KS,°íÈ¿À² R-R-esl-ESL-5045ML-5 24060761 6127 127.4 5700 82.2 45 -
ESL-40ML6060K57S 40 KS,°íÈ¿À² - -4983 128.0 5700 82.5 45 -



TOP