ÆòÆÇ¸ÅÀÔ M-BAR 450*450
Á¦Ç°»ç¾ç

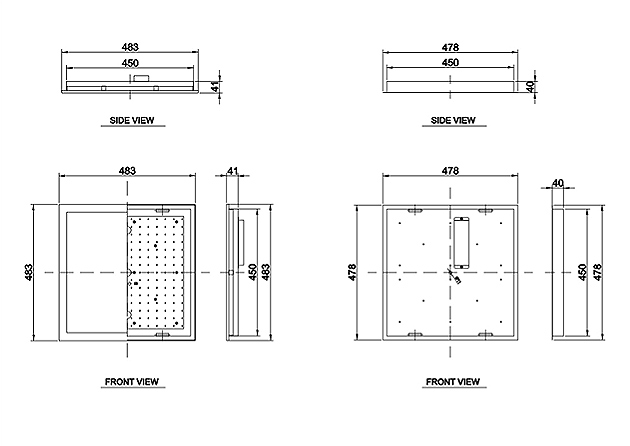
¡Ø Á¦Ç°ÀÇ Å¸°ø»çÀÌÁî´Â ¹Ýµå½Ã ´ã´çÀÚ¿¡°Ô È®ÀÎ ºÎʵ右´Ï´Ù.
Ç¥¸¦ ÁÂ,¿ì·Î µå·¡±× ÇØÁÖ¼¼¿ä.
| ¸ðµ¨¸í |
¼ÒºñÀü·Â(W) |
Á¦Ç°ÀÎÁõ |
Àü±âÀüÀÚÆÄ ÀûÇÕµî·Ï¹øÈ£ |
Á¶´Þû ¹°Ç°½Äº°¹øÈ£ |
ÃʱⱤ¼Ó(lm) |
±¤È¿À²(lm/W) |
»ö¿Âµµ(K) |
¿¬»ö¼º(Ra) |
Ãâ·ÂÀü¾Ð(V) |
ºñ°í |
| ESL-60ML4545K57 |
60 |
KS,°íÈ¿À² |
R-R-esl-ESL60ML4545K57 |
- |
6468 |
117 |
5700 |
82.8 |
45 |
¹é»öÅ× |
| ESL-40ML4545K57 |
40 |
KS,°íÈ¿À² |
R-R-esl-ESL60ML4545K57 |
- |
4658 |
119.1 |
5700 |
82.8 |
45 |
¹é»öÅ× |